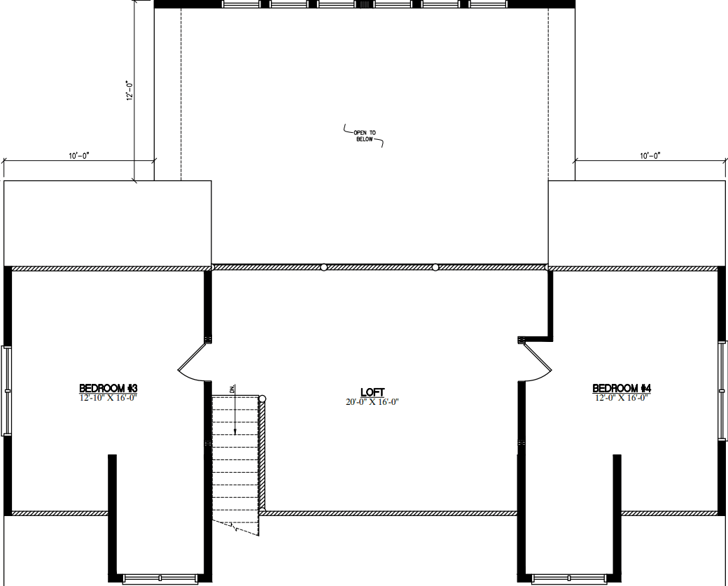
Homes | Canyon Lodge 2848