Other

Keystone Trader
Keystone Trader is more than just a dealership - we are a team of Park Model enthusiasts who share a passion for adventure, tiny living, and the Florida sunshine. Our friendly team of experts has years of experience in the industry, and we are dedicated to designing the perfect Park Model or Home to suit your needs and budget. Our park models are second-to-none, with top-of-the-line American craftsmanship in each one. With Park Models from Keystone Trader, you get to design your own floor plan, choose the features you want, and all at an affordable price. If you can dream it, we can build it! Here at Keystone Trader, we believe that life is too short to settle for the ordinary - let us help you find your extraordinary.
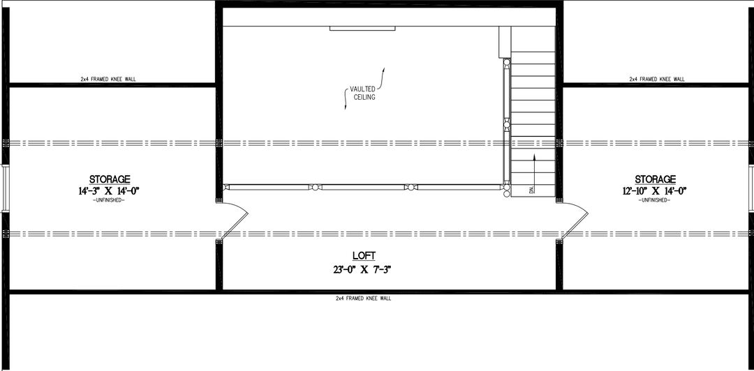
Are you looking for a log cabin that has an emphasis on the kitchen and living areas? The Timberline cabin is a beautiful 2 story cabin that is focused around exactly that. With the 20ft vaulted ceiling in the dining room, this Timberline cabin is all about creating a comfortable space for you and your guests. With the classy look of our knotty pine stairs your guests won’t feel banished to the second floor but invited to stay in a beautiful loft for some privacy and seclusion. Making this place the desired resting area when out of town travelers come to visit. Maybe this is your getaway cabin in the mountains, and now you have all the more room to take family and friends here for a weekend worth remembering. Any way you look at it, the Timberline log cabin with its vaulted ceiling will be the place to go for years to come! With floor plan options ranging in square footage from 1,607sq. ft to 2,368sq. ft., the Timberline cabin gives you the fabulous options you need to get a cabin that is the right size for you and the ones you love.
Enter your address or APN to check if this home fits on your property
Enter your property street address or APN
Construction
1177 SE Keystone Ave.
Keystone Heights, FL 32656
(352) 844-9777
Mon-Fri, 9am–5pm
Sat, 10am–3pm
Sunday, Closed
(We are happy to accomodate special appointment requests. Please see sales associate for details)
Dealer License #:
Images of homes are solely for illustrative purposes and should not be relied upon. Images may not accurately represent the actual condition of a home as constructed, and may contain options which are not standard on all homes.
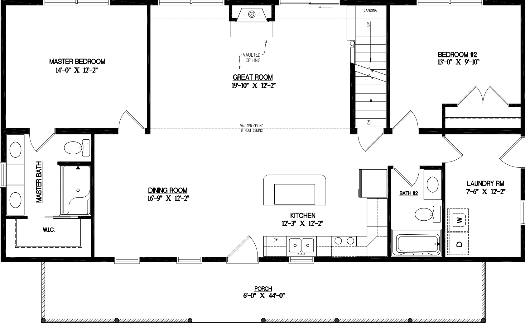
2 Bed | 2 Bath | 1,538 Sq. Ft. | 26' x 52'
2 Bed | 2 Bath | 1,552 Sq. Ft. | 30' x 48'
2 Bed | 2 Bath | 1,553 Sq. Ft. | 30' x 48'